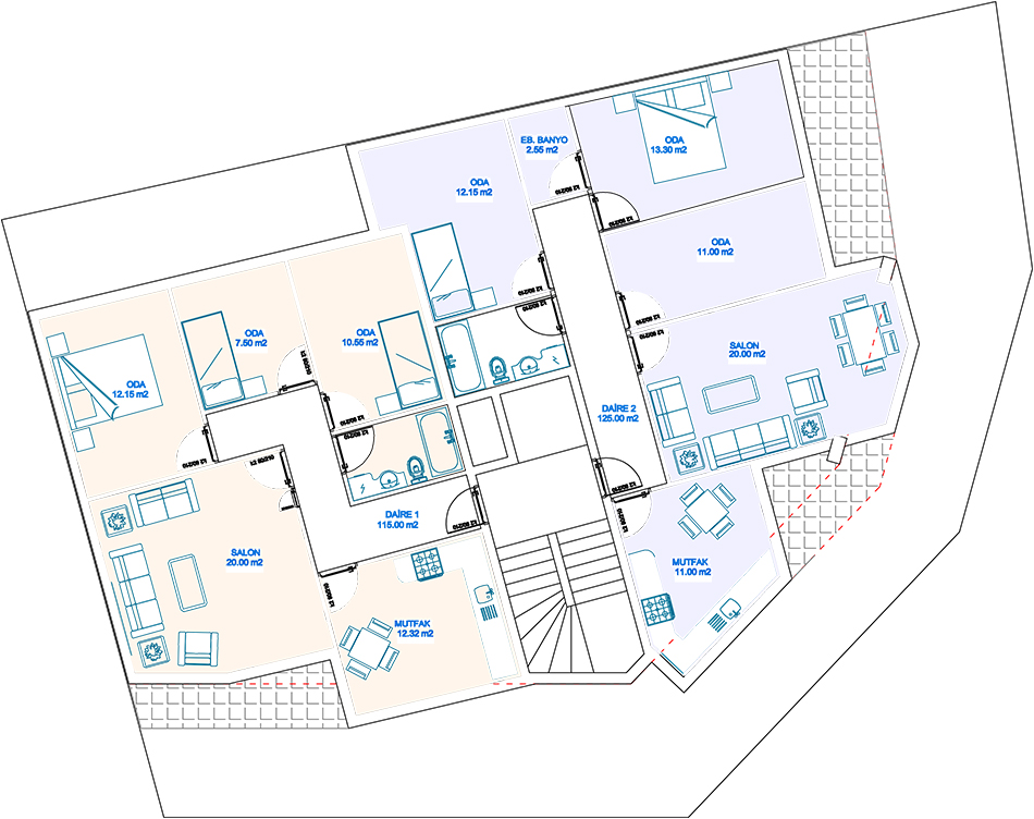
Platinium Evleri İzmir'in Menderes ilçesinde inşaa edilmektedir. Projemiz hakkında detaylı bilgi almak için 0232 782 67 30 irtibat numaralı telefondan bizler ile iletişime geçebilirsiniz. Projemize ait daire ve dükkan planları fotoğraf galerimizde yer almaktadır. Sizleri de ofisimize bekliyoruz.